8 minutes from Shinjuku Station A luxury house wi - flood/Shinjuku-ku Tokyo | House in Shinjuku-ku

3 Bedroom House in Shinjuku, Shinjuku-ku
Nearby facilities
Nearest station
Nakai station 5 minutes on foot Seibu Shinjuku Line
Nakai Station 6 minutes on foot Toei Oedo Line
Ochiai Minami Nagasaki Station 8 minutes on foot Toei Oedo Line
Please understand beforehand that there is an uphill from Nakai Station
Convenience
Yamazaki 1 minute
Seven Eleven 4 minutes open 24 hours
Shopping Center i Terrace 750m in MinamiNagasaki Station
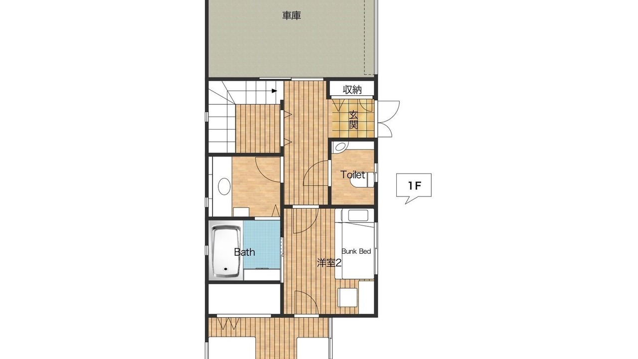
Room
Bedroom 5 rooms
Each room has a large storage space
Living room
There is a large television a threeseat sofa and a rotating table
The living room and dining room are 15 tatami mats in total
Dining room
There is a large dining table on the 2nd floor
Kitchen Space
A nice and bright kitchen
It is about 44 tatami mats in size
Busroom
There is a large bathroom with a highquality bust on the first floor
There is a shower room on the 2nd floor
Dedicated entrance
Warm water wash toilets 2 places
/ You can use a large detached house in a quiet highend residential area on a high ground with good security Host coliving type
There are 3 bedrooms for guests only and up to 10 people can stay
There are bathrooms and toilets for guests only
It is a 5minute walk from the station 8 minutes by train to Shinjuku and it is very convenient to access other tourist spots
About the host
We are a Chinese family living in Japan for 30 years
We value the comfortable stay of our guests
T
If you would like a receipt that is compatible with the invoice system, please contact the property directly.
This 3 Bedrooms House provides accommodation with Internet, Designated Smoking Area, Wellness Facilities, for your convenience. This House features many amenities for guests who want to stay for a few days, a weekend or probably a longer vacation with family, friends or group. The rental House has 3 Bedrooms and 1 Bathroom to make you feel right at home.
Check to see if this House has the amenities you need and a location that makes this a great choice to stay in Shinjuku. Enjoy your stay in Shinjuku at this House.
Amenities
Facility Overview
-
Heating
-
Air conditioning
-
1 bathroom
-
Hair dryer
-
Towels provided
-
Sofa bed
-
3 bedrooms
-
Bed sheets provided
-
Dining table
-
Refrigerator
-
Stovetop
-
Cookware/dishes/utensils
-
Microwave
-
Washing machine
-
Laundry facilities
-
Onsite parking
-
No pets allowed
-
Designated smoking areas
-
TV
-
Unit size: 1076 sq ft (100 sq m)
-
Tatami (woven mat floors)
-
English
-
Japanese
-
Desk
-
Iron/ironing board
-
Free WiFi
-
Terrace
-
Fire extinguisher
-
Smoke detector installed (host has indicated there is a smoke detector on the property)
-
Carbon monoxide detector not reported (host has not indicated whether there is a carbon monoxide detector on the property; consider bringing a portable detector)
Policies
Extra-person charges may apply and vary depending on property policy government-issued photo identification and a credit card, debit card, or cash deposit may be required at check-in for incidental charges host has indicated there is a smoke detector on the property host has not indicated whether there is a carbon monoxide detector on the property; consider bringing a portable detector with you on the trip onsite parties or group events are strictly prohibited property registration number m130014063 safety features at this property include a fire extinguisher special requests are subject to availability upon check-in and may incur additional charges; special requests cannot be guaranteed this property is managed through our partner, vrbo. you will receive an email from vrbo with a link to a vrbo account, where you can change or cancel your reservation